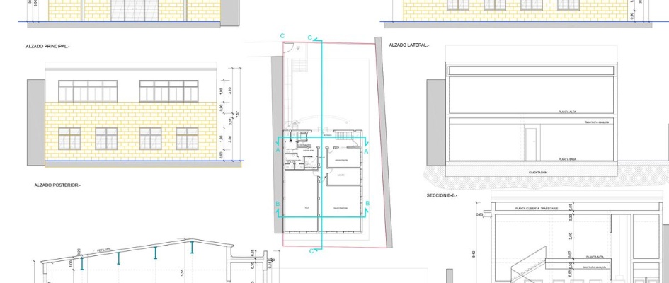
Coria del Río continúa tomando la educación, la formación y el empleo como un pilar clave para el progreso del municipio. Muestra de ello es la próxima inversión que se realizará por más de 400.000 euros y que permitirá la construcción del nuevo centro de formación que ha sacado a licitación el consistorio esta semana. El edificio se levantará en el solar municipal ubicado entre la Avenida de Blas Infante y la calle Miguel Hernández y consistirá en un edificio de 255,50 metros cuadrados, distribuido en tres plantas, que contará con aulas y espacios comunes.
El centro de formación nace de la necesidad de ampliar la dotación de aulas homologadas que permitan desarrollar los distintos programas de formación y empleo que promueve el Ayuntamiento de Coria del Río, con la finalidad de revitalizar también el uso y disfrute de las instalaciones existentes, así como ampliarlas y mejorarlas.
Según informa el Alcalde de Coria del Río, Modesto González, “en los últimos años hemos desarrollado diferentes programas formativos con una gran aceptación por parte de la ciudadanía, donde los vecinos y vecinas han podido aprender distintos oficios en nuestras instalaciones municipales. A la elevada demanda de participantes se le ha sumado el alto porcentaje de usuarios que han encontrado empleo poco después de acabar la formación, muy cercana al 100% en algunas promociones. Con estos datos sobre la mesa, ponemos en marcha un ilusionante proyecto que permitirá a los corianos y corianas disponer de una nueva infraestructura donde seguir ampliando sus conocimientos y mejorar sus oportunidades en el mercado laboral”.
Entre los cursos a los que se refiere el regidor coriano se encuentran los de competencias clave, asistencia sociosanitaria a personas dependientes, estética, manipulador de alimentos, etc. Todos desarrollados de forma totalmente gratuita para los ciudadanos. Además, es la primera vez que el Ayuntamiento de Coria del Río está impartiendo Certificados de Profesionalidad, que es el mayor rango de cualificación que podemos encontrar en las acreditaciones profesionales actuales en España.
La formación y el empleo son un eje clave en la gestión que viene realizando Modesto González y su equipo de Gobierno en la última década. Cuando el actual alcalde de Coria del Río llegó al Gobierno local en 2013, se encontró con una tasa de desempleo cercana al 35% de la población. Desde entonces, el municipio ha experimentado un descenso constante año tras año, sólo frenado en 2020 por la pandemia del COVID-19. A pesar de ello, la recuperación económica de Coria del Río ha sido rápida y tanto en 2021 como en 2022 el paro ha continuado disminuyendo, situándose ahora mismo en el 22%, la cifra más baja desde el año 2008.
Las empresas interesadas en ejecutar la construcción podrán presentar sus ofertas hasta las 23:59h del 20 de noviembre de 2022. Una vez adjudicada la obra, el plazo de ejecución de la misma será de 5 meses.
-----
Gabinete Prensa del Ayto. de Coria del Río